CEHA terá acesso a mais documentação




O Centro de Estudos de História do Atlântico (CEHA) vai receber documentação que actualmente se encontra em diversos outros serviços e arquivos documentais.
Ontem, na inauguração das novas instalações do CEHA o presidente do Governo Regional referiu que esta entidade vai precisar de documentos que porventura se encontram noutros locais e vice-versa, pelo que disse ao secretário regional da Educação e Cultura para que «faça um despacho que permita a circulação de documentação da forma que for necessária e com a pressa e com a rapidez que o trabalho cultural e científico exige».
Por seu turno, o presidente do CEHA disse que vai ser feita uma aposta em documentos em suporte digital. Tal como explicou Alberto Vieira, «nós já temos um acervo significativo de documentos referentes à Madeira que existem nos arquivos nacionais e estrangeiros que estão em microfilme», sendo que «alguns já passámos para suporte digital e outros vamos fazê-lo». Segundo referiu, «não estamos a falar em documentos originais, porque esses é impossível transpor de outros sítios para aqui». «No fundo, aquilo que se pretende é colocar cópias em suportes que permitam uma fácil utilização pelos investigadores», acrescentou.
Este responsável apontou que este processo irá ocorrer em relação a um acervo significativo que está nos arquivos nacionais, em Lisboa, documentos que «foram levados no século XIX daqui da Madeira, da Provedoria da Fazenda e da Alfândega do Funchal. Segundo adiantou, ao longo destes anos, esta documentação foi microfilmada, sendo que uma parte significativa já está digitalizada, para depois estar à disposição das pessoas. Além disso, apontou também documentação que está situada noutros arquivos, como Londres, em que «também já temos alguma coisa». Segundo referiu, trata-se fundamentalmente de informação relacionada com a Madeira.
Por outro lado, a nível regional, é de referir que este novo espaço irá acolher uma parte do espólio do Museu Vicentes.
A um ano de completar 25 anos, o CEHA ganhou uma nova casa e o chefe do Executivo madeirense disse, agora, esperar que o alto nível científico que este organismo já conseguiu prossiga. «Agora, com estas instalações magníficas, há que internacionalizar cada vez mais as trocas culturais que a Madeira hoje tem capacidade para ter com todo o mundo», frisou Alberto João Jardim.
Segundo o governante, «agora é que começa o trabalho a sério». É que, sublinhou, «se até agora o trabalho do CEHA foi se afirmar, agora tem uma responsabilidade maior», designadamente esta expressão internacional do Centro e da vida cultural da Madeira.
Por outro lado, o governante explicou as razões que levaram à criação deste espaço, entre as quais o interesse que o trabalho do CEHA «estava a produzir junto de vários centros culturais e científicos». «Comecei a notar nos vários continentes, não apenas na Europa, o interesse que esta instituição estava a despertar», disse.
A outro nível, já no âmbito do 25.º aniversário do CEHA, Alberto Vieira adiantou que na primeira semana de Novembro vai ser apresentado um anuário do Centro, cujo primeiro tema será um debate sobre os estudos insulares, evento no qual participarão investigadores de várias partes do mundo para fazer o ponto da situação dos estudos insulares nos últimos 25 anos.
Além disso, no próximo ano, haverá um congresso comemorativo dos 25 anos do Centro, que se assinalam a 26 de Julho, o qual contará com grupos de trabalho que estão neste momento a ser organizados, desde as Caraíbas, o Pacífico, Índico, Mediterrâneo e norte da Europa. «A nossa ideia é criar aqui um pólo de investigação e de divulgação da temática dos espaços insulares não restrita ao Atlântico, que foi aquela primeira aposta de início, mas que nós queremos agora seja a todos os espaços insulares que existem e que são importantes em termos da história actual», sublinhou.
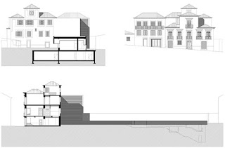
A obra
O novo Centro de Estudos de História do Atlântico é um projecto que foi assumido no programa de Governo como um forte compromisso social e tem como objectivo enriquecer, decisivamente, o panorama cultural madeirense.
Além de dar continuidade à aposta do Executivo madeirense na criação e dinamização de equipamentos de valorização do património histórico-cultural, a nova infra-estrutura qualificada possibilitará conservar um património tão importante e dar continuidade a projectos de investigação sobre a História da Madeira. A obra implicou a recuperação de um prédio antigo afecto a esta finalidade, que possibilitará, por outro lado, um melhor acesso dos cidadãos à informação sobre a memória e a entidade regional. O Centro de Estudos desenvolve-se em quatro níveis (cave e três pisos acima do solo). O piso zero é dedicado à circulação do público, onde este poderá aceder à sala de índices, área expositiva, biblioteca digital, sala de leitura, filmoteca, auditório e respectivos serviços de apoio. Nos restantes pisos, a circulação do público em geral é condicionada, sendo estes espaços destinados a serviços internos, designadamente à área de direcção e investigação.
Foi tida em atenção a acessibilidade a pessoas com mobilidade reduzida, tendo sido tomadas as medidas necessárias para que estas possam usufruir confortavelmente dos espaços e foram-lhes reservados quatro lugares especiais no auditório e instalações sanitárias convenientemente dimensionadas.
A nova infra-estrutura é uma obra do Governo Regional, que ascendeu a dois milhões de euros.
Jornal da Madeira

Sem comentários:
Enviar um comentário
Não serão aceites comentarios de anonimos